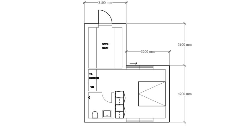
Anneks i sommerhushaven
Projekt: Sommerhus og -have, Tørresø
År: 2024
I dette projekt forenes arbejdet som havearkitekt med arbejdet som indretningsarkitekt.
For år tilbage har jeg tegnet haven omkring et nybygget sommerhus.
Nu ønskede kunden at opføre et anneks i haven og derved ændre/udbygge lidt på havedesignet.
Her har jeg arbejdet både med plantegning, materiale- og farvevalg på anneks og med den nye haveindretning omkring annekset.



