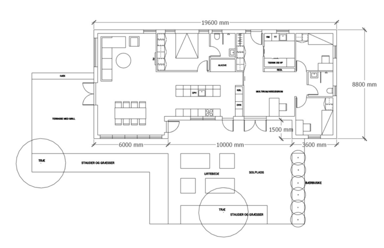
Optimering af planløsninger
Projekt: Private boliger, nybyggeri
År: 2023-2024
Måske skal du renovere en ældre bolig, så den bliver mere nutidig?
Eller du skal bygge helt nyt?
Jeg tegner gerne en planløsning til dig, som er funktionel og som passer præcis til dine og jeres behov.
Så er du sikker på, at din bolig er funktionel og nem at indrette. At der er plads til at TV´et kan ses fra sofaen, at der er plads til at betjene skabene, at der er plads til alt det praktiske i bryggerset. Og meget mere
Samtidig får du en planløsning der er optimeret, så der netop ikke er spildplads. En løsning hvor hver en kvadratmeter er udnyttet optimalt.
Det er vigtigt i en tid hvor vi SKAL tænke bæredygtigt. Dit hus er oftest din dyreste investering. Så selvfølgelig skal investeringen optimeres!


