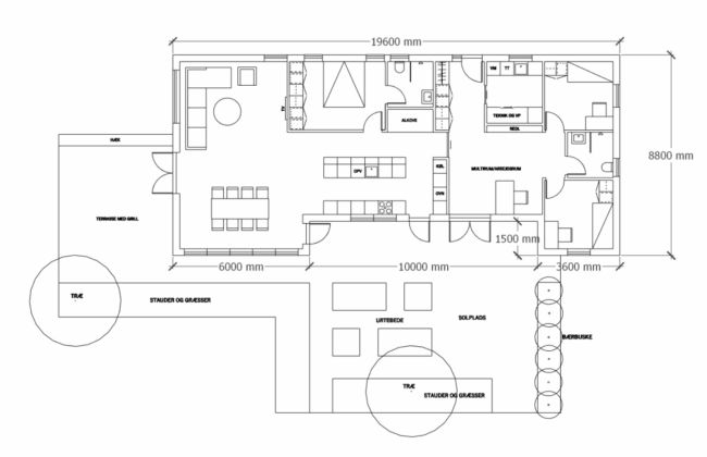
Planløsninger
Som indretningsarkitekt arbejder jeg med boligens planløsning. Det er supervigtigt at give planløsningen opmærksomhed for modsat farven på væggen kan du ikke så let ændre denne efterfølgende. Tænk derfor nøje over hvordan din bolig skal fungere. Hvem bor i boligen? Hvad er jeres behov? Hvilke zoner skal der være plads til i boligen: sove, opbevaring,…



